CIME Transactions Agence
Vendu

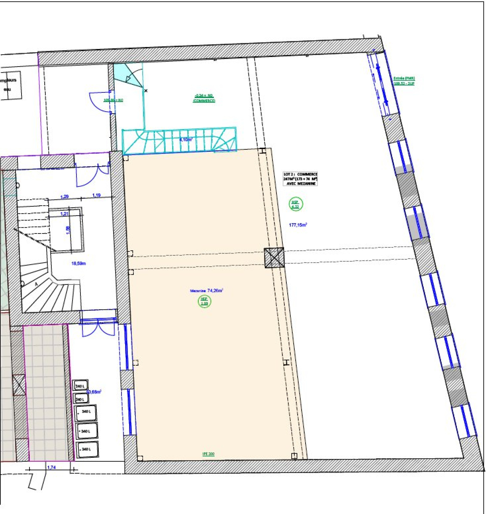
Local commercial 174 m²

Lyon (69006)
520 000 € Référence

A propos de ce bien

Bel emplacement pour ce local de 174 m2 vendu en plateau brut de béton, belle hauteur de plafond permettant un espace supplémentaire de 74 m2 sur un plancher intermédiaire et une cave de 30 m2, pas de restauration ni commerces. Petite copropriété entièrement rénovée 2016/2017, faibles charges.

Caractéristiques de ce bien

Activités

  • Type de transaction Local commercial

Agencement

  • Superficie m2 174 m²
  • Exposition SUD-NORD

Equipements

  • Chauffage autre : autre (autre)
  • Interphone OUI
  • Digicode OUI

Secteur

  • Code postal 69006
  • Ville Lyon

Calcul des mensualités

* Champs obligatoires

Diagnostics énergétiques

DPE
GES
DPE ANCIENNE VERSION

Informations financières

Prix de vente honoraires inclus 520 000 €
Les honoraires d'agence seront intégralement à la charge du vendeur  
Charges 140 €